Property Detail
ニセコ 中古戸建
ニセコ 中古戸建
6,800万円
物件種目
中古戸建
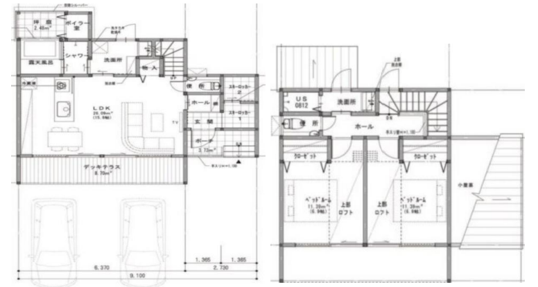
間取り
2LDK
所在
北海道虻田郡ニセコ町字ニセコ
交通アクセス
- 最寄駅
- 函館本線 ニセコ駅 徒歩86分
建物・土地情報
- 土地面積
- 201.50㎡
- 建物面積
- 85.04㎡
- 建物構造
- 木造合金メッキ鋼板ぶき2階建
- 築年月
- 2021年12月
法令・権利関係
- 建ぺい率
- 70
- 容積率
- 400
- 接道状況
- 北側私道幅員8m 長さ13m
その他詳細
- 現況
- 空家
- 引渡日
- 即時
間取り図
お問い合わせ
物件に関するご質問、内覧のご予約など、
お気軽にお問い合わせください。



