リビング29畳の贅沢すぎる沼津別荘
リビング29畳の贅沢すぎる沼津別荘
物件概要
| 物件価格 | 2,797万円 |
|---|---|
| 物件種目 | 中古戸建 |
| 所在地 | 静岡県沼津市若葉町 |
| 都道府県 | 静岡県 |
交通
| 最寄駅 | 東海道線「沼津」駅 |
|---|---|
| 駅距離 | 車15分 |
建物・土地
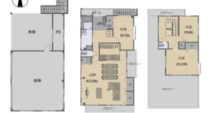
| 間取り | 3LDK+倉庫 |
|---|---|
| 土地面積 | 132.23㎡ |
| 建物面積 | 173.44㎡ |
| 建物構造 | 鉄骨造3階建 |
| 築年月 | 1982年5月 |
| 駐車場台数 | 1台 |
法令・権利
| 土地権利 | 所有権 |
|---|---|
| 地目 | 宅地 |
| 都市計画区分 | 市街化区域 |
| 用途地域 | 第二種住居地域 |
| 建ぺい率 | 70% |
| 容積率 | 200% |
| 接道状況 | 西側公道幅員約4.1m、接道約13.6m 北側私道幅員約5m、接道約6.16m |
その他
| 現況 | 空室 |
|---|---|
| 引渡日 | 相談 |
間取り図

お問い合わせ
この物件についてのご質問・ご相談は、
お気軽にお問い合わせください。



