Property Detail
千葉県南房総市千倉町瀬戸_中古物件
千葉県南房総市千倉町瀬戸_中古物件
1,280万円
物件種目
中古戸建
間取り
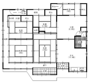
5K
所在
千葉県南房総市千倉町瀬戸
交通アクセス
- 最寄駅
- JR内房線 千倉
- 駅距離
- 徒歩12分
建物・土地情報
- 土地面積
- 2057.91㎡
- 建物面積
- 123.11 ㎡
- 建物構造
- 木造
- 築年月
- 1955年11月
法令・権利関係
- 土地権利
- 所有権
- 地目
- 宅地
- 都市計画
- 市街化区域
- 用途地域
- 無指定
- 接道状況
- 南2.5m 公道
その他詳細
- 現況
- 空室
- 引渡日
- 相談
間取り図
お問い合わせ
物件に関するご質問、内覧のご予約など、
お気軽にお問い合わせください。
