Property Detail
埼玉県秩父市久那_中古戸建
埼玉県秩父市久那_中古戸建
1380万円
物件種目
中古戸建
間取り
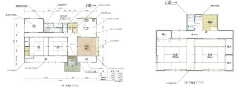
6DK
所在
埼玉県秩父市久那
交通アクセス
- 最寄駅
- 西武秩父バス さけづくりの森
- 駅距離
- 歩1分
建物・土地情報
- 土地面積
- 229.12㎡
- 建物面積
- 160.93㎡
- 建物構造
- 木造
- 築年月
- 1997年1月
法令・権利関係
- 土地権利
- 所有権
- 地目
- 宅地
- 都市計画
- 無指定
- 用途地域
- 無指定
- 建ぺい率
- 60%
- 容積率
- 200%
- 接道状況
- 西6m幅(接道幅3m)
その他詳細
- 現況
- 空室
- 引渡日
- 相談
間取り図
お問い合わせ
物件に関するご質問、内覧のご予約など、
お気軽にお問い合わせください。


