Property Detail
小田原市板橋_中古戸建
小田原市板橋_中古戸建
4480万円
物件種目
中古戸建
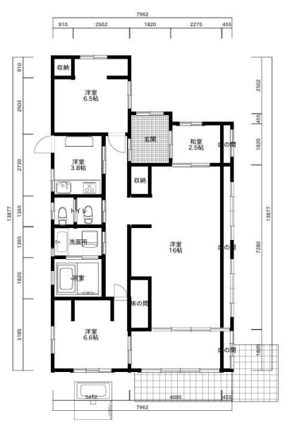
間取り
2LDK
所在
神奈川県小田原市板橋
交通アクセス
- 最寄駅
- 箱根登山鉄道 箱根板橋
- 駅距離
- 徒歩 10分
建物・土地情報
- 土地面積
- 1214.59㎡
- 建物面積
- 99.99㎡
- 建物構造
- 木造
法令・権利関係
- 土地権利
- 所有権
- 地目
- 宅地
- 都市計画
- 市街化区域
- 用途地域
- 第一種低層住居専用地域
- 建ぺい率
- 50%
- 容積率
- 150%
- 接道状況
- 南側4m
その他詳細
- 現況
- 空室
- 引渡日
- 相談
間取り図
お問い合わせ
物件に関するご質問、内覧のご予約など、
お気軽にお問い合わせください。


