Property Detail

小田原市浜町_中古戸建

小田原市浜町_中古戸建

3480万円
物件種目 中古戸建
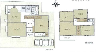
間取り 4SLDK
所在 神奈川県小田原市浜町1丁目

交通アクセス

最寄駅
東海道本線 小田原駅
駅距離
徒歩13分

建物・土地情報

土地面積
176.62㎡
建物面積
127.94㎡
建物構造
木造
築年月
1988年9月
駐車場
1台

法令・権利関係

土地権利
所有権
地目
宅地
都市計画
市街化区域
用途地域
商業地域
建ぺい率
80%
容積率
228%
接道状況
南側 3.8m

その他詳細

現況
居住中
引渡日
相談

間取り図

お問い合わせ

この物件についてのご質問は、
こちらからお気軽にお問い合わせください。

お問い合わせフォームへ

お問い合わせ

物件に関するご質問、内覧のご予約など、
お気軽にお問い合わせください。

    必須お問い合わせ種別