Property Detail

沖縄県国頭郡本部町字_高級別荘

沖縄県国頭郡本部町字_高級別荘

9,600 万円
物件種目 中古戸建
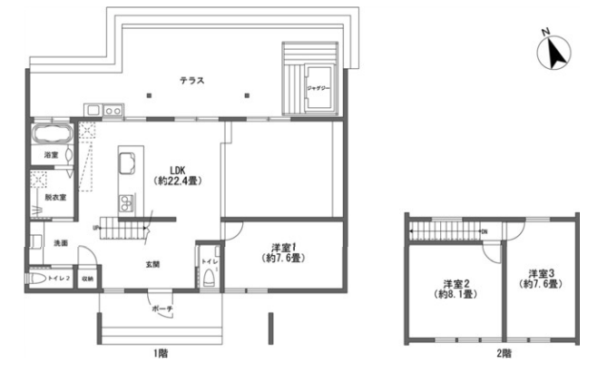
間取り 3LDK
所在 沖縄県国頭郡本部町字山川西原

交通アクセス

建物・土地情報

土地面積
1,620.42㎡
建物面積
101.84㎡
建物構造
木造
築年月
2020年2月

法令・権利関係

土地権利
所有権
地目
宅地
都市計画
市街化区域

その他詳細

現況
空室
引渡日
相談

間取り図

お問い合わせ

この物件についてのご質問は、
こちらからお気軽にお問い合わせください。

お問い合わせフォームへ

お問い合わせ

物件に関するご質問、内覧のご予約など、
お気軽にお問い合わせください。

    必須お問い合わせ種別