Property Detail
熊本県熊本市西区池田_中古物件
熊本県熊本市西区池田_中古物件
980万円
物件種目
中古戸建
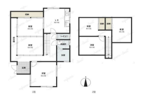
間取り
7K
所在
熊本県熊本市西区池田
交通アクセス
- 最寄駅
- 熊本電気鉄道韓々坂駅
- 駅距離
- 徒歩8分
建物・土地情報
- 土地面積
- 189.16㎡
- 建物面積
- 112.62㎡
- 建物構造
- 木造
- 築年月
- 1980[S55]年04月
- 駐車場
- 1台
法令・権利関係
- 土地権利
- 所有権
- 地目
- 宅地
- 都市計画
- 市街化区域
- 用途地域
- 第二種中高層住居専用地域
- 建ぺい率
- 60%
- 容積率
- 200%
- 接道状況
- 【角地】南 幅:5.1m 公道 接面:13m
その他詳細
- 現況
- 空室
- 引渡日
- 相談
間取り図
お問い合わせ
物件に関するご質問、内覧のご予約など、
お気軽にお問い合わせください。

