Property Detail
那須 中古別荘
那須 中古別荘
5,000万円
物件種目
中古戸建
間取り
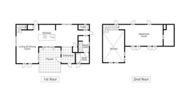
1LDK
所在
栃木県那須郡那須町大字高久乙
交通アクセス
- 最寄駅
- JR東北本線「那須塩原」車25km
建物・土地情報
- 土地面積
- 734㎡
- 建物面積
- 92.73㎡
- 築年月
- 2020年3月
法令・権利関係
その他詳細
- 引渡日
- 相談
間取り図
お問い合わせ
物件に関するご質問、内覧のご予約など、
お気軽にお問い合わせください。


