9LDK_金沢_別荘
9LDK_金沢_別荘
物件概要
| 物件価格 | 1,830 万円 |
|---|---|
| 物件種目 | 中古戸建 |
| 所在地 | 石川県金沢市幸町 |
| 都道府県 | 石川県 |
交通
| 最寄駅 | JR北陸本線 金沢駅 |
|---|---|
| 駅距離 | 車19分 |
建物・土地
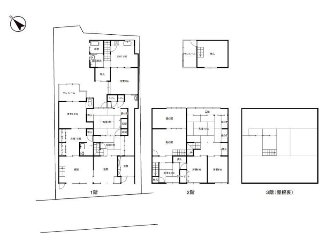
| 間取り | 9LDK |
|---|---|
| 土地面積 | 228.09㎡ |
| 建物面積 | 203.56㎡ |
| 建物構造 | 木造 |
| 築年月 | 昭和39年5月 |
| 駐車場台数 | 3台 |
法令・権利
| 土地権利 | 所有権 |
|---|---|
| 地目 | 宅地 |
| 都市計画区分 | 市街化区域 |
| 用途地域 | 第一種住居地域 |
| 建ぺい率 | 80% |
| 容積率 | 200% |
| 接道状況 | 南西 3.64 |
その他
| 現況 | 空室 |
|---|---|
| 引渡日 | 相談 |
間取り図

お問い合わせ
この物件についてのご質問・ご相談は、
お気軽にお問い合わせください。



