河口湖ログハウス
河口湖ログハウス
物件概要
| 物件価格 | 3,000万円 |
|---|---|
| 物件種目 | 中古戸建 |
| 所在地 | 山梨県南都留郡富士 |
| 都道府県 | 山梨県 |
| 取引態様 | 専任 |
交通
| 最寄駅 | 河口湖駅 |
|---|---|
| 駅距離 | 約5,000m |
建物・土地
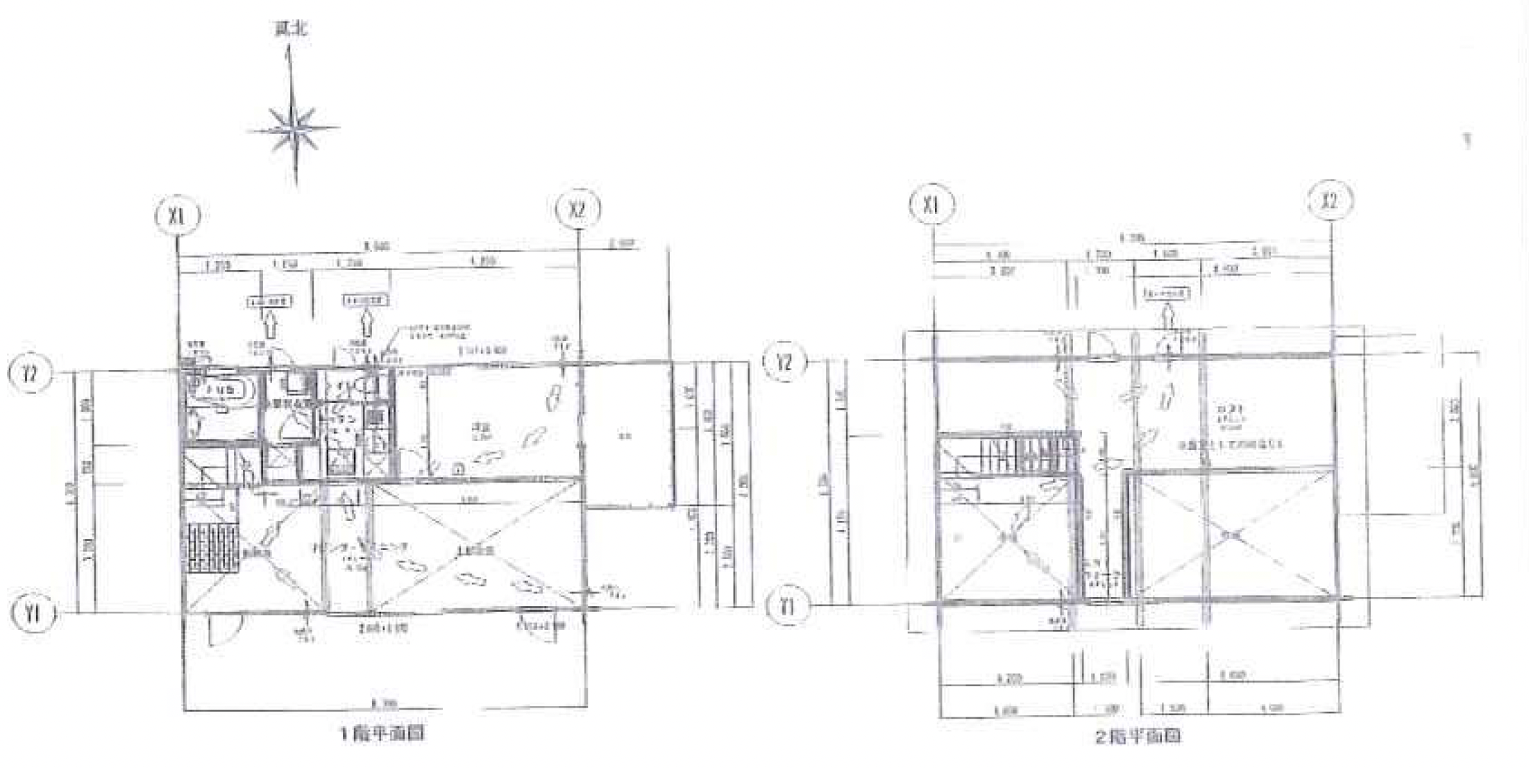
| 間取り | 2LDK |
|---|---|
| 土地面積 | 304.44㎡ |
| 建物面積 | 86 36㎡ |
| 建物構造 | 木造2階建 |
| 築年月 | 2010年4月 |
| 駐車場台数 | 有り |
法令・権利
| 土地権利 | 所有権 |
|---|---|
| 地目 | 宅地 |
| 都市計画区分 | 市街化区域 |
| 建ぺい率 | 70% |
| 容積率 | 200% |
| 接道状況 | 公道に面す |
その他
| 現況 | 空家 |
|---|---|
| 引渡日 | 相談 |
| 備考 | 民泊利用不可 |
物件詳細
河口湖畔から徒歩7分! 大きな富士山を部屋から望む!
間取り図

お問い合わせ
この物件についてのご質問・ご相談は、
お気軽にお問い合わせください。


